5 Rossdale Manor, Ballymena, Co Antrim, BT42 2SL
2 Bed First Floor Apartment Sale Agreed
Offers Around £114,500
| Style | First Floor Apartment | Bedrooms | 2 |
| Bathrooms | 2 | Receptions | 1 |
| Heating | Gas central heating | ||
| Status | Sale Agreed | ||
A well proportioned property offering low maintenance living close to amenities, this first floor apartment is found within a tidy complex off the Tullygarley Road.
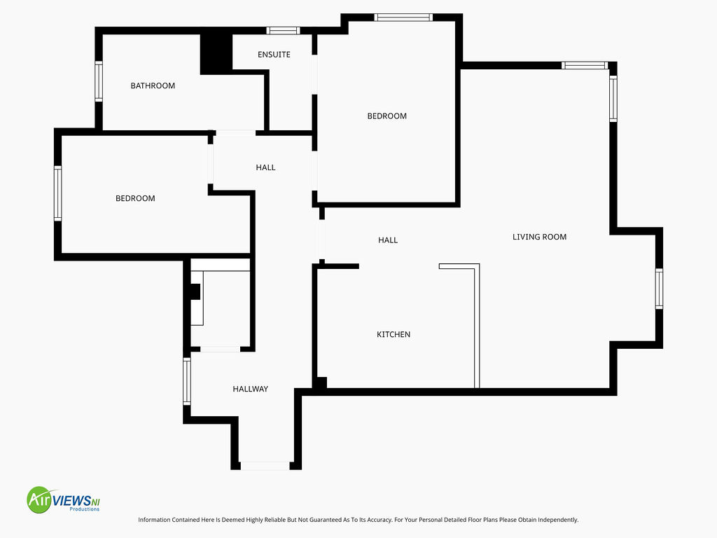
There is an intercom system at the front door for visitor access, with the property entered via a well kept communal area. The accommodation includes a large open plan living/dining/kitchen area, two double bedrooms (master with en-suite) and spacious bathroom.
With parking immediately adjacent, No 5 overlooks the Old Tullygarley Road, and is directly opposite Ross Court which has a number of shops and eateries. The nearest bus stop is within easy walking distance, as is Tullygarley River Walk and Galgorm Golf Course and Castle, with main commuter roads easily accessible.
Perfect for the downsizer, first time buyer and private investor, the property is purchased with no onward chain.
Ground floor
Communal Entrance Area :- Staircase.
First floor
Hallway :- Storage cupboard off. Carpeted.
Living/Dining/Kitchen 6.75m x 6.54m (22’2’’ x 21’6’’)
Living/Dining :- Carpeted. Double aspect.
Kitchen includes range of eye and low level cream units with chrome. One and a quarter bowl stainless steel sink unit. Tiled to units. Built in hob and oven. Stainless steel extractor fan. Integrated dishwasher and fridge/freezer. Tiled flooring. Spotlights.
Bedroom 1 3.68m x 2.80m (12’1’’ x 9’2’’) :- Carpeted.
En-suite 1.82m x 1.76m (6’0” x 5’9”):- Includes white lfwc and whb. Splash back tiling to whb. Fully tiled shower cubicle. Tiled flooring.
Bedroom 2 4.03m x 2.42m (13’3’’ x 7’11’’) :- Carpeted.
Bathroom 3.39m x 2.12m (11’1’’ x 7’0’’) :- Includes white three piece suite comprising lfwc, whb and bath. Floor to ceiling splash back tiling to whb. Fully tiled to bath. Tiled flooring.
External
Communal parking and courtyard.
uPVC double glazed windows
Gas central heating system
650 SQ FT (approx)
Management Charge – £900 p.a. (approx)
Approximate rates calculation – £972
Long leasehold assumed
All measurements are approximate
Viewing strictly by appointment only
Free valuation and mortgage advice available
N.B. Please note that any services, heating system, or appliances have not been tested and no warranty can be given or implied as to their working order.
IMPORTANT NOTE
We endeavour to ensure our sales brochures are accurate and reliable. However, they should not be relied on as statements or representatives of fact and they do not constitute any part of an offer or contract. The seller does not make any representation or give any warranty in relation to the property and we have no authority to do so on behalf of the seller.
