77 Galgorm Road, Ballymena, Co Antrim, BT42 1AA
6 Bed Semi Detached House Sale Agreed
Offers Around £325,000
| Style | Semi Detached House | Bedrooms | 6 |
| Bathrooms | 2 | Receptions | 4 |
| Heating | Oil Fired Central Heating | ||
| Status | Sale Agreed | ||
Originally constructed around 1878 on land separated from The Waveney Estate, this B1 listed building seldomly changes ownership, and has more recently been used as a doctor’s practice and treatment room whilst retaining the residential accommodation.
Retaining all of the character and features of the era, the floor space extends to some 4,400 square feet, which takes in the original dwelling and the more recent extension. This includes an open plan reception area and two storey treatment room which will appeal to those who may require home work space or annex accommodation with ‘Air bnb’ potential also.
A striking period home from the outside, the appeal continues as you enter the main dwelling via the Victorian Porchway, where the high ceilings, cornicing, and balustrade staircase give a feel for the charm to come in the reception rooms and first floor bedroom accommodation. The conservatory leads to the old reception area and treatment room annex, which also has a separate entrance from the rear, allowing for use as two separate self contained units or as one larger, reimagined home.
Accessed from the highly sought after Galgorm Road only metres from Ballymena Academy and Ballymena Railway Station, Ballymena town centre is within comfortable walking distance with main commuter roads nearby offering easy access to Belfast, Aldergrove International Airport and The Causeway Coast. Leighinmohr, Tullyglass and the Adair Arms Hotels are all within walking distance, with the Galgorm Golf Resort and Spa less than 2 miles away in the bustling village of Galgorm.
On a low maintenance plot with generous off street parking and lawns, this is an excellent opportunity to acquire a prestige property with massive potential for a number of uses, found in one of the best locations in Ballymena.
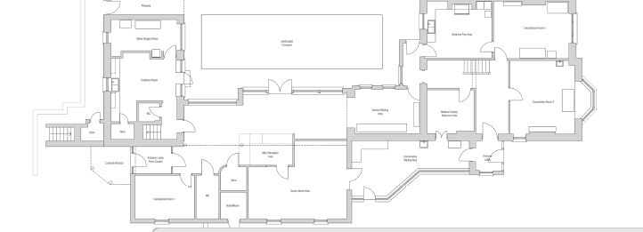
Ground Floor
ENTRANCE PORCH :- Original tiled flooring.
CONSERVATORY 8.28m X 4.11m (27’2” x 13’6”) :- Victorian quarry tiled flooring. Access to Hallway and Reception Quarters.
HALLWAY :- Italian ceiling cornicing and picture rail. Mahogany balustrade staircase. Access to old waiting area in extension and to courtyard. Original tiled flooring to rear hallway.
DRAWING ROOM 5.16m X 4.49m ( 16’11” x 14’9”) :- Bay window. Marble fireplace with cast iron inset and slate tiled hearth. Plumbed for coal effect gas fire. Italian ceiling cornicing and picture rail.
DINING ROOM 5.44m x 3.95m ( 17’10” x 13’0”) :- Slate fireplace with marble panelling. Plumbed for coal effect gas fire. Italian ceiling cornicing and picture rail.
KITCHEN 4.48m x 3.95m (14′ 8″ x 13′ 0″) :- Includes range of low level units. Wooden worktops with sunken sink unit. Aga cooker. Victorian tiled flooring.
READING ROOM 3.31m x 3.02m (10’10” x 9’11”) :- Tiled fireplace and hearth. Double doors to Conservatory.
First floor
LANDING :- Ceiling cornicing. Stained glass windows. Storage cupboard off.
BATHROOM 3.02m x 2.98m (9’11” x 9’9”) :-Includes three piece suite comprising lfwc, whb and bath. Fully tiled walls. WALK IN STORAGE 3.00m x 1.40m (9’10” x 4’7”)
BEDROOM 1 5.17m x 4.50m ( 17’0” x 14’9”) :- Marble fireplace with cast iron inset and slate tiled hearth. Ceiling cornicing and picture rail.
BEDROOM 2 5.26m x 3.97m (17’3” x 13’0”) :- . Slate fireplace with marble panelling. Ceiling cornicing and picture rail.
BEDROOM 3 4.17m X 3.97m ( 13’8” x 13’0”) :- Slate fireplace with marble panelling. Ceiling coricing and picture rail.
BEDROOM 4 3.31m x 3.01m (10’10” x 9’10”) :- Cast iron fireplace.
Second floor
GAMES ROOM 7.84m x 3.34m (20′ 8″ x 10′ 11″)
BEDROOM 5 5.20m x 4.49m (17′ 1″ x 14′ 9″)
BEDROOM 6 5.15m x 3.34m (16’11” x 10’11”)
Link Block with potential for numerous uses
ENTRANCE PORCHWAY
ADMIN AREA/GAMES ROOM 6.77m x 5.42m ( 22’2” x 17’9”) :- Could be opened up into Reception and Waiting Areas.
RECEPTION/CASUAL LIVING AREA 16.30m x 4.84m (53’6” x 15’11”) :- Panelled ceiling. Walk in store. Aspects over courtyard.
DOWNSTAIRS TOILET 3.00m x 1.58m (9’10” x 5’2”) :- Includes white lfwc and whb. Chinese slate tiled flooring.
OFFICE/BEDROOM 4.07m x 3.02m (13’4” x 9’11”)
Treatment Centre/Annex with ‘ Air BnB’ and ‘Granny Flat’ Potential
Ground floor
Access from Reception Area and Separate outside staircase
DOWNSTAIRS TOILET 1.47m x 1.26m (4’10” x 4′ 2″) :- Includes white lfwc and whb. Chinese slate tiled flooring.
KITCHEN 4.84m x 4.71m (15′ 11″ x 15′ 5″) :- Includes range of eye and low level units. Stainless steel and circular sink units. Spotlights. Chinese slate tiled flooring.
UTILITY ROOM 4.87m x 2.55m (16′ 0″ x 8′ 4″) :- Includes eye and low level units. Circular sink unit. Chinese slate tiled flooring.
Staircase to First floor
OPEN PLAN LIVING/DINING/KITCHEN AREA 8.29m x 4.56m (27′ 2″ x 11′ 6″) :- Wooden flooring. Storage cupboard off. Eye and low level units.
External
Access from Galgorm Road – please note 77a has right of way.
Fully enclosed secluded courtyard with excellent level of privacy. Walkways and pond with water lilies and irises. Wired for fountain and lighting.
Laid in lawn to front and side. Tarmac area to front of conservatory could be adapted for additional parking or private garden space.
There is vehicular access to the rear carpark area and another garden behind the annex planted with trees and shrubs. There is scope to enlarge and enclose this garden area.
Original pitch pine internal doors and elegant staircase
Extensive Cat 5 computer cabling throughout
Oil fired central heating system
4400 SQ FT (approx)
Approximate rates calculation – TBC
Freehold assumed
Measurements are approximate and to widest points
Viewing strictly by appointment only
Free valuation and mortgage advice available
N.B. Please note that any services, heating system, or appliances have not been tested and no warranty can be given or implied as to their working order.
IMPORTANT NOTE
We endeavour to ensure our sales brochures are accurate and reliable. However, they should not be relied on as statements or representatives of fact and they do not constitute any part of an offer or contract. The seller does not make any representation or give any warranty in relation to the property and we have no authority to do so on behalf of the seller.
Originally constructed around 1878 on land separated from The Waveney Estate, this B1 listed building seldomly changes ownership, and has more recently been used as a doctor’s practice and treatment room whilst retaining the residential accommodation.
Retaining all of the character and features of the era, the floor space extends to some 4,400 square feet, which takes in the original dwelling and the more recent extension. This includes an open plan reception area and two storey treatment room which will appeal to those who may require home work space or annex accommodation with ‘Air bnb’ potential also.
A striking period home from the outside, the appeal continues as you enter the main dwelling via the Victorian Porchway, where the high ceilings, cornicing, and balustrade staircase give a feel for the charm to come in the reception rooms and first floor bedroom accommodation. The conservatory leads to the old reception area and treatment room annex, which also has a separate entrance from the rear, allowing for use as two separate self contained units or as one larger, reimagined home.
Accessed from the highly sought after Galgorm Road only metres from Ballymena Academy and Ballymena Railway Station, Ballymena town centre is within comfortable walking distance with main commuter roads nearby offering easy access to Belfast, Aldergrove International Airport and The Causeway Coast. Leighinmohr, Tullyglass and the Adair Arms Hotels are all within walking distance, with the Galgorm Golf Resort and Spa less than 2 miles away in the bustling village of Galgorm.
On a low maintenance plot with generous off street parking and lawns, this is an excellent opportunity to acquire a prestige property with massive potential for a number of uses, found in one of the best locations in Ballymena.
Ground Floor
CONSERVATORY 8.28m X 4.11m (27’2” x 13’6”) :- Victorian quarry tiled flooring. Access to Hallway and Reception Quarters.
HALLWAY :- Italian ceiling cornicing and picture rail. Mahogany balustrade staircase. Access to old waiting area in extension and to courtyard. Original tiled flooring to rear hallway.
DRAWING ROOM 5.16m X 4.49m ( 16’11” x 14’9”) :- Bay window. Marble fireplace with cast iron inset and slate tiled hearth. Plumbed for coal effect gas fire. Italian ceiling cornicing and picture rail.
DINING ROOM 5.44m x 3.95m ( 17’10” x 13’0”) :- Cast iron with decorative tiled cast iron inset and ornate tiled hearth. Plumbed for coal effect gas fire. Italian ceiling cornicing and picture rail.
KITCHEN 4.48m x 3.95m (14′ 8″ x 13′ 0″) :- Includes range of low level units. Wooden worktops with sunken sink unit. Aga cooker. Victorian tiled flooring.
READING ROOM 3.31m x 3.02m (10’10” x 9’11”) :- Tiled fireplace and hearth. Double doors to Conservatory.
First floor
LANDING :- Ceiling cornicing. Stained glass windows. Storage cupboard off.
BATHROOM 3.02m x 2.98m (9’11” x 9’9”) :-Includes three piece suite comprising lfwc, whb and bath. Fully tiled walls. WALK IN STORAGE 3.00m x 1.40m (9’10” x 4’7”)
BEDROOM 1 5.17m x 4.50m ( 17’0” x 14’9”) :- Marble fireplace with cast iron inset and slate tiled hearth. Ceiling cornicing and picture rail.
BEDROOM 2 5.26m x 3.97m (17’3” x 13’0”) :- Cast iron fireplace. Ceiling cornicing and picture rail.
BEDROOM 3 4.17m X 3.97m ( 13’8” x 13’0”) :- Marble fireplace with cast iron inset. Ceiling coricing and picture rail.
BEDROOM 4 3.31m x 3.01m (10’10” x 9’10”) :- Cast iron fireplace.
Second floor
GAMES ROOM 7.84m x 3.34m (20′ 8″ x 10′ 11″)
BEDROOM 5 5.20m x 4.49m (17′ 1″ x 14′ 9″)
BEDROOM 6 5.15m x 3.34m (16’11” x 10’11”)
Link Block with potential for numerous uses
ADMIN AREA/GAMES ROOM 6.77m x 5.42m ( 22’2” x 17’9”) :- Could be opened up into Reception and Waiting Areas.
RECEPTION/CASUAL LIVING AREA 16.30m x 4.84m (53’6” x 15’11”) :- Panelled ceiling. Walk in store. Aspects over courtyard.
DOWNSTAIRS TOILET 3.00m x 1.58m (9’10” x 5’2”) :- Includes white lfwc and whb. Chinese slate tiled flooring.
OFFICE/BEDROOM 4.07m x 3.02m (13’4” x 9’11”)
Treatment Centre/Annex with ‘ Air BnB’ and ‘Granny Flat’ Potential
Ground floor
Access from Reception Area and Separate outside staircase
DOWNSTAIRS TOILET 1.47m x 1.26m (4’10” x 4′ 2″) :- Includes white lfwc and whb. Chinese slate tiled flooring.
KITCHEN 4.84m x 4.71m (15′ 11″ x 15′ 5″) :- Includes range of eye and low level units. Stainless steel and circular sink units. Spotlights. Chinese slate tiled flooring.
UTILITY ROOM 4.87m x 2.55m (16′ 0″ x 8′ 4″) :- Includes eye and low level units. Circular sink unit. Chinese slate tiled flooring.
Staircase to First floor
OPEN PLAN LIVING/DINING/KITCHEN AREA 8.29m x 4.56m (27′ 2″ x 11′ 6″) :- Wooden flooring. Storage cupboard off. Eye and low level units.
External
Access from Galgorm Road – please note 77a has right of way.
Fully enclosed secluded courtyard with excellent level of privacy. Walkways and pond with water lilies and irises. Wired for fountain and lighting.
Laid in lawn to front and side. Tarmac area to front of conservatory could be adapted for additional parking or private garden space.
There is vehicular access to the rear carpark area and another garden behind the annex planted with trees and shrubs. There is scope to enlarge and enclose this garden area.
Original pitch pine internal doors and elegant staircase
Extensive Cat 5 computer cabling throughout
Oil fired central heating system
4400 SQ FT (approx)
Approximate rates calculation – TBC
Freehold assumed
Measurements are approximate and to widest points
Viewing strictly by appointment only
Free valuation and mortgage advice available
N.B. Please note that any services, heating system, or appliances have not been tested and no warranty can be given or implied as to their working order.
IMPORTANT NOTE
We endeavour to ensure our sales brochures are accurate and reliable. However, they should not be relied on as statements or representatives of fact and they do not constitute any part of an offer or contract. The seller does not make any representation or give any warranty in relation to the property and we have no authority to do so on behalf of the seller.
