77a Galgorm Road, Ballymena, Co Antrim, BT42 1AA
3 Bed Detached Chalet Bungalow For Sale
Offers Around £315,000
| Style | Detached Chalet Bungalow | Bedrooms | 3 |
| Bathrooms | 2 | Receptions | 1 |
| Heating | Oil Fired Central Heating | ||
| Status | For Sale | ||
Superbly located on the much sought after Galgorm Road, this spacious detached chalet bungalow was constructed around 2006 and extends to some 2100 square feet, finished and presented to an excellent standard throughout thanks to a recent upgrade.
A fine example of open plan living, prospective purchasers will be struck by the bright and airy spaces from the moment you step into the hallway and informal dining space. The living room is overlooked from the first floor gallery, and has a modern kitchen space off it with a supply of newly fitted appliances. Formatted for use as a bungalow there are two bedrooms (master with en-suite) on the ground floor, with a gallery mezzanine landing leading to the first floor master suite.
Designed with privacy in mind, the property occupies a private position to the rear of 77 Galgorm Road and is accessed via a legal ‘right of way’, and is found on a low maintenance plot with generous parking provision and outdoor entertaining space.
A short walk from Ballymena Academy, Cambridge House, St Louis Grammar Schools and Ballymena Railway Station, the town centre is within comfortable walking distance, and main commuter roads easily accessible. Leighinmohr, Tullyglass, Adair Arms Hotels are all close by, with the Galgorm Golf Resort and Spa less than two miles away in the bustling village of Galgorm.
Purchased with no onward chain, viewing is a must to fully appreciate all the benefits this attractive home has to offer.
Ground Floor
HALLWAY/INFORMAL DINING AREA 5.99m x 4.04m (19’8” x 13’3”) :- Reclaimed wooden flooring.
LOUNGE/KITCHEN 7.20m X 4.85m (23’7” x 15’11”)
LOUNGE :- Reclaimed wooden flooring. Antique marble fireplace with cast iron inset and slate tiled hearth. Double patio doors to rear. Vaulted ceiling with wooden panelled. Feature circular stained glass window.
KITCHEN :- Newly fitted with range of soft close low level units in white matt finish. One and a quarter bowl stainless steel sink unit. Quartz effect worktops and up-stands. Hi-Sense fridge and freezer and dishwasher. Built in hob and oven. Spotlights. Reclaimed wooden flooring.
BEDROOM 2 3.67m X 3.67m ( 12’0” x 12’0”) :- Reclaimed wooden flooring. Bright with dual aspect windows.
BEDROOM 3 3.77m x 2.52m (12’4” x 8’3”) :- Reclaimed wooden flooring. Bright with dual aspect windows.
EN-SUITE 2.22m x 1.58m (7’3” x 5’2”) :- Includes white lfwc and vanity whb. Panelled quadrant shower cubicle with Rain head and separate attachment. Tiled flooring.
STORAGE CUPBOARD :- Plumbed for washing machine.
SHOWER ROOM 3.66m x 2.18m (12’0” x 7’2”) :- Includes white lfwc and whb with mosaic splash back tiling. Panelled double shower cubicle with Rain head and separate attachment. Travertine marble flooring.
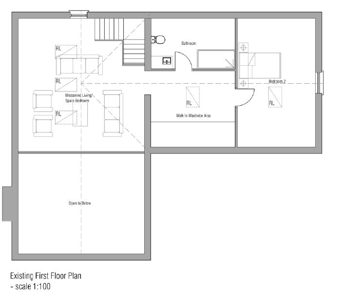
First floor
MEZANNINE GALLERY LANDING 6.00m X 5.90m (19’8” x 19’4”) :- Reclaimed wooden flooring. Panelled ceiling with spotlights. Circular windows with nautical themed stained glass.
MASTER SUITE 6.00m x 4.70m ( 19’8” x 15’5”) :- Reclaimed wooden flooring. Accessed via storage area.
BATHROOM 3.13m x 2.82m (10’3” x 9’3”) :-Includes four piece suite comprising lfwc, whb, bidet and free standing roll top bath. Chrome accessories. Reclaimed wooden flooring.
External
Access from Galgorm Road via legal ‘right of way’ over 77 Galgorm Road. Tarmac parking area. Laid in lawn.
Oil fired central heating system
2100 SQ FT (approx)
Approximate rates calculation – TBC
Freehold assumed
Measurements are approximate and to widest points
Viewing strictly by appointment only
Free valuation and mortgage advice available
N.B. Please note that any services, heating system, or appliances have not been tested and no warranty can be given or implied as to their working order.
IMPORTANT NOTE
We endeavour to ensure our sales brochures are accurate and reliable. However, they should not be relied on as statements or representatives of fact and they do not constitute any part of an offer or contract. The seller does not make any representation or give any warranty in relation to the property and we have no authority to do so on behalf of the seller.
