8 Wellington Crescent, Ballymena, Co Antrim, BT42 2RZ
4 Bed Detached For Sale
Offers Around £345,000
| Style | Detached | Bedrooms | 4 |
| Bathrooms | 3 | Receptions | 2 |
| Heating | Gas central heating | ||
| Status | For Sale | ||
A contemporary dwelling in one of Ballymena’s most sought after private developments, 8 Wellington Crescent is the ideal family home, offering spacious accommodation on a generous plot close to a wide range of amenities, and has the huge benefit of being purchased with no onward chain.
The property is finished and presented to a high modern standard, and is practically laid out for all purposes. The open plan kitchen/dining/living space is perfect for entertaining, with two separate reception rooms for everyday living, complimented by the downstairs bathroom and utility room. There are four double bedrooms (master with en-suite) and family bathroom upstairs to complete the 1800 or so square feet of floor space.
On an attractive plot with off street parking and fully enclosed rear gardens, the covered outdoor living space to the rear of the garden is an eye catching feature, just one of the factors separating this home from the norm.
Opposite Galgorm Golf Course and within walking distance of Galgorm Village, Tullygarley River Walk and Ballymena Academy and Cambridge House Grammar Schools, commuters can easily access main arterial routes to Aldergrove Airport, Belfast city centre and The North Coast.
A home of some calibre in a very convenient location, please contact our office for viewing arrangements.
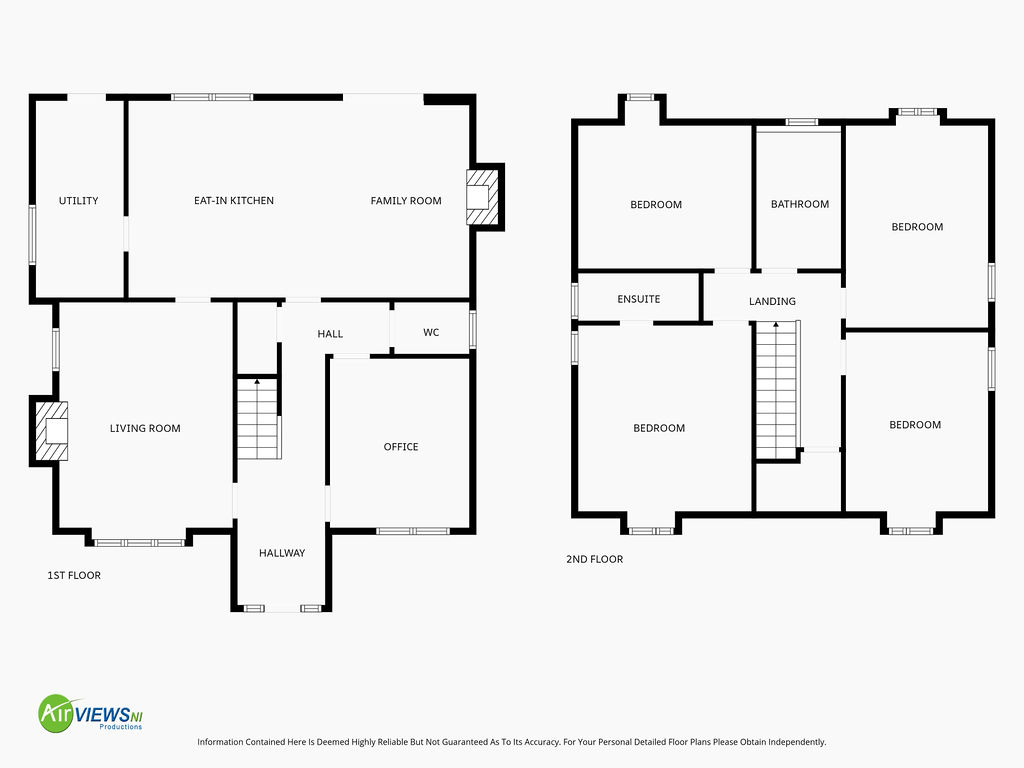
Ground floor
Hallway :- Porcelain tiled flooring. Balustrade staircase.
Lounge 3.81m x 3.15m (12’6” x 10’4”) :- Laminate wooden flooring. Currently used as Office.
Living room 5.36m x 3.91m (17’7” x 12’10”) :- Limestone fireplace. Bay window. Laminate wooden flooring.
Open plan Kitchen/Dining/Living 8.36m x 4.44m (27’5″ x 14’7″) :- Includes range of eye and low level Shaker style units. Stainless steel sink unit. Quartz effect worktops and up-stands. Built in gas hob and electric oven. Stainless steel extractor fan. Integrated fridge/freezer and dishwasher. Porcelain tiled flooring.
Utility room 4.44m x 1.98m (14’7” x 6’6”) :- Includes range of eye and low level units. Stainless steel sink unit. Quartz effect worktops and up-stands. Plumbed for washing machine. Space for dryer. Porcelain tiled flooring.
Cloakroom 1.70m x 1.17m (5’7” x 3’10”) :- Includes white lfwc and vanity whb. Porcelain tiled flooring.
First floor
Landing :- Carpeted to stairs and landing. Shelved Storage cupboard. Access to loft.
Bathroom 3.07m x 1.93m (10’1″x 6’4″) :- Includes white three piece suite comprising lfwc, vanity whb and bath. Chrome accessories including shower attachment to bath. Fully tiled quadrant shower cubicle. Tiled to whb, splash back tiling to bath. Chrome heated towel rail. Tiled flooring.
Bedroom 1 4.57m x 3.91m (15’0″ x 12’10”) :- Carpeted. Fitted wardrobes.
En-suite 2.72m x 1.07m (8’11” x 3’6”):- Includes white lfwc and vanity whb with chrome accessories. Fully tiled double shower cubicle. Tiled to whb. Chrome heated towel rail. Tiled flooring.
Bedroom 2 4.80m x 3.23m (15’9″ x 10‘7″) :- Carpeted.
Bedroom 3 4.42m x 3.23m (14’6” x 10’7”) :- Carpeted
Bedroom 4 3.91m x 3.78m (12’10” x 12’5”) :- Carpeted.
External
Attached Garage 6.12m x 3.45m (20’1” x 11’4”) : Roller door.
Front :- Laid in lawn with brick pavia walkway.
Side :- Brick pavia off street parking for 3 vehicles. Access to rear.
Rear :- Flagged patio and walkways. Laid in lawn. Fully enclosed. Private aspect. Covered outdoor entertaining area.
- uPVC Oak grain double glazed windows.
- uPVC fascia and soffits.
- Mains gas central heating system.
- Oak engineered internal doors.
- 1800 SQ FT (approx)
- Approximate rates calculation – £1,890
- Maintenance Charge :- £ p.a. (approx.)
- Freehold assumed.
- All measurements are approximate
- Viewing strictly by appointment only
- Free valuation and mortgage advice available.
N.B. Please note that any services, heating system, or appliances have not been tested and no warranty can be given or implied as to their working order.
|
